KaufenCHF 750'000
Grundstück in Dättlikon

Grundstück 563 m2, mit EFH-Vorprojekt, sonnige Lage, familienfreundliche Umgebung, einmalige Aussicht!

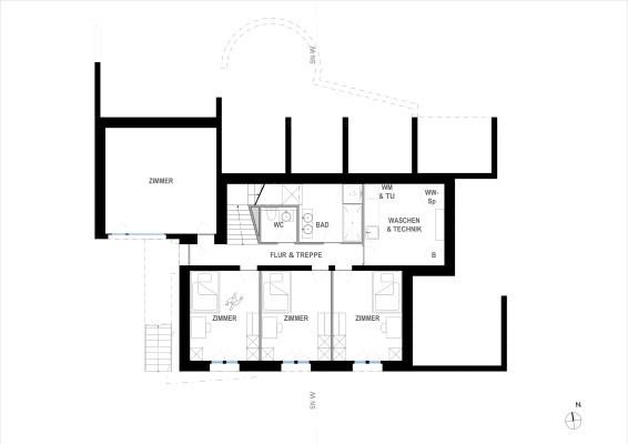
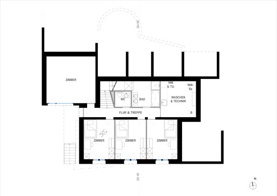
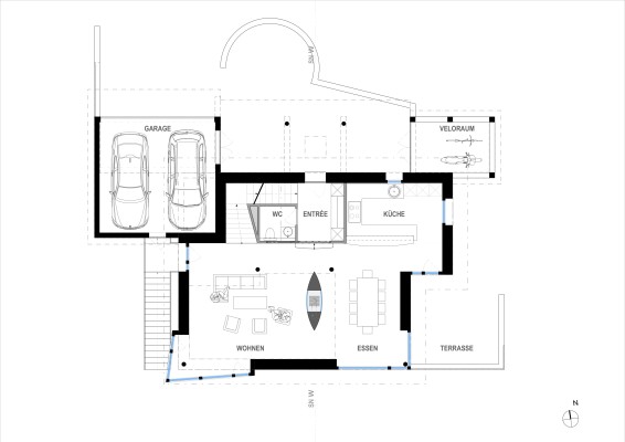
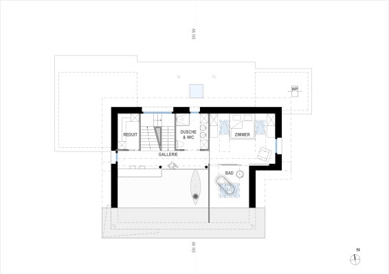
Wir bieten an sonniger und ruhiger Lage ein einmaliges Grundstück (563 m2) mit einem Bauprojekt für ein Einfamilienhaus mit mindestens 6½ Zimmern. Wegen seiner Hanglage ist eine ideale Besonnung sowie eine unverbaubare Aussicht garantiert.

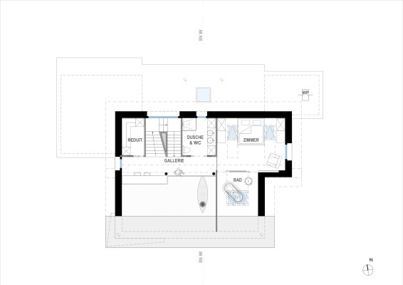
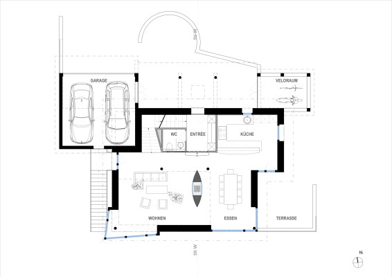
Das geplante Gebäude ist auf drei Geschossebenen mit rund 250 m2 Wohnfläche organisiert. Die Südfassade des Gebäudes ist grosszügig verglast und bietet Ausblick ins untere Tösstal. Eine einmalige Gelegenheit für ruhesuchende und naturbezogene Interessenten.

Gerne zeigen wir Ihnen dieses Wohnbauland an bester Lage.

Der Kaufpreis bezieht sich nur auf das Grundstück, nicht auf das noch zu erstellende Gebäude! Details entnehmen Sie der Verkaufsdokumentation im Anhang.

Lassen Sie sich diese Gelegenheit nicht entgehen. Nehmen Sie Kontakt mit uns auf, damit wir einen Besichtigungstermin vereinbaren können.

Zögern Sie nicht, wir freuen uns auf Ihren Anruf


Zurück zur Übersicht

Mehr Immobilien Angebote

CHF 1'450'000
Kaufen
Benken

Denkmalgeschütztes Mehrfamilienhaus

CHF 950'000
Kaufen
Waltenstein/Schlatt

Zwei Grundstücke mit Altbauten

CHF 1'690'000
Kaufen
Kleinandelfingen

Freistehendes Einfamilienhaus mit viel Privatsphäre

CHF 1'290'000
Kaufen
Rheinau

Historisches Wohnhaus mit Werkstätte in Rheinau

Kaufen
Humlikon

Charmantes Bauernhaus in Humlikon

CHF 1'680'000
Kaufen
Gerlikon

1381 m² Grundstück in Gerlikon

CHF 1'590'000
Kaufen
Kleinandelfingen

Trendiges 6½ Zimmer Einfamilienhaus in Kleinandelfingen

CHF 620'000
Kaufen
Truttikon

Ein einzigartiges Projekt für Liebhaber historischer Bausubstanz

CHF 5'800
Mieten
Ossingen

Alte Mühle des Schloss Wyden, 10½ Zimmer, viele Nebenräume, geschichtsträchtige Anlage

CHF 1'480'000
Kaufen
Adlikon b. Andelfingen

Schulhaus mit Ausbaupotential

CHF 750'000
Kaufen
Dättlikon

Grundstück 563 m2, mit EFH-Vorprojekt

CHF 2'650'000
Kaufen
Dägerlen

Landwirtschaftliches Anwesen mit Bauernhaus